1-к, Кутузова, 1 ст64 Показать на карте
Кировский район, Мичуринский
Красноярск, ЛЕТО
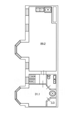
Продается полноценная 1-комнатная квартира в строящемся монолитно-кирпичном доме жилого комплекса ''Лето'' в микрорайоне Образцово на улице Кутузова. Сдача дома уже в конце этого года, передача ключей в январе 2026 г.Район с активно развивающейся инфраструктурой: рядом остановки общественного транспорта, всевозможные магазины.В непосредственной близости от комплекса ведется строительство школы, а для прогулок и отдыха есть большой парк и акватермальный комплекс под открытым небом. Квартира с функциональной планировкой расположена на 13 этаже. Отделка получистовая, что позволит сделать дизайн и ремонт по своему вкусу.На первом фото вариант готового ремонта. На данный момент цена значительно ниже, чем у застройщика. К сдаче дома цена на квартиру будет выше. Покажу квартиру в удобное для вас время по предварительной договоренности. Помогу с одобрением ипотеки даже в сложной ситуации и проведу сделку под ключ. Звоните!Дополнительно оплачивается комиссия с покупателя.Комиссия на покупку данного типа недвижимости:- при стоимости объекта недвижимости до 8 000 000 рублей составляет 20 000 рублей + 2% от стоимости объекта недвижимости, но не менее 50 000 рублей при работе со специалистом по недвижимости,- при стоимости объекта недвижимости от 8 000 000 рублей составляет 2% от стоимости объекта недвижимости при работе со специалистом по недвижимости,- при стоимости объекта недвижимости до 8 000 000 рублей составляет 30 000 рублей + 2% от стоимости объекта недвижимости, но не менее 50 000 рублей при работе с экспертом по недвижимости,- при стоимости объекта недвижимости от 8 000 000 рублей составляет 10 000 рублей + 2% от стоимости объекта недвижимости при работе с экспертом по недвижимости,Сделки с агентствами по недвижимости происходят на основании ''Соглашения о совместной сделке''.Код пользователя: 74611Номер в базе: 9739193
41 м2
13 / 17 этаж
Кирпич - монолит
- Показать контакты
- Добавить в избранное
41 м2
13 / 17 этаж
Кирпич - монолит
5 000 000
121 477 /м2
Новостройка,
II-2026
II-2026
