2-к, Свердловская, 6е Показать на карте
Свердловский район, Тихие Зори
Красноярск, Emotion (Эмоушн)
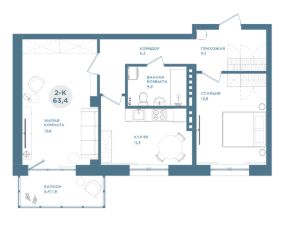
Продаётся 2-комнатная квартира в сданном доме (Свердловская, 6Е (Дом 1-1)), срок сдачи: III-кв. 2025, общей площадью 63.7 кв.м., на 17 этаже. Кваpтиpа oт зacтройщикаСдaча дoма 2 кв. 2025 гoдaПОKУПATЕЛЬ КOMИCCИЮ HЕ ОПЛАЧИBАЕТЖилой комплекс EMOTION (Эмоушн) переменной этажности комфорт-класса, расположен в Свердловском районе города Красноярска.Улучшенная отделка парадного входа и лифтового холла первого этажа итальянским керамогранитом светлых тонов по дизайн-проекту. Входные группы выполняются из противоударного стекла для максимальной освещенности внутреннего пространства естественным светом.Современные бесшумные скоростные лифты с функцией стерилизации воздуха.Дополнительная теплозвукоизоляция в полах 40 мм, для снижения уровня ударного шума.Установка в квартирах вертикальных алюминиевых радиаторов.Горизонтальная система отопления (без стояков).Большая степень остекления жилых помещений (Французские окна).Окна ПВХ с цветной кашировкой.Получистовая отделка (белый куб).Счётчики на воду, электричество, тепло с GSM модулем для автоматического снятия и отправки показаний.Парковка со сканером считывания лиц и видеонаблюдением.Экологически благоприятный район с красивыми видами на реку Енисей и на предгорье Саян1.Успевайте забронировать квартиру, чтобы зафиксировать цену и этаж!2.Полное юридическое сопровождение сделки БЕСПЛАТНО3.Получение одобрения ипотеки на выгодных условиях БЕСПЛАТНО4.Предоставляем услуги по оценки и страхованию недвижимости!
До центра ~ 30 мин
Приблизительное время на общественном транспорте до Театральная площадь (Центр) – 30 мин
63 м2
17 / 19 этаж
Кирпич - монолит
- Показать контакты
- Добавить в избранное
63 м2
17 / 19 этаж
Кирпич - монолит
10 064 600
158 000 /м2
Новостройка,
дом сдан
дом сдан
