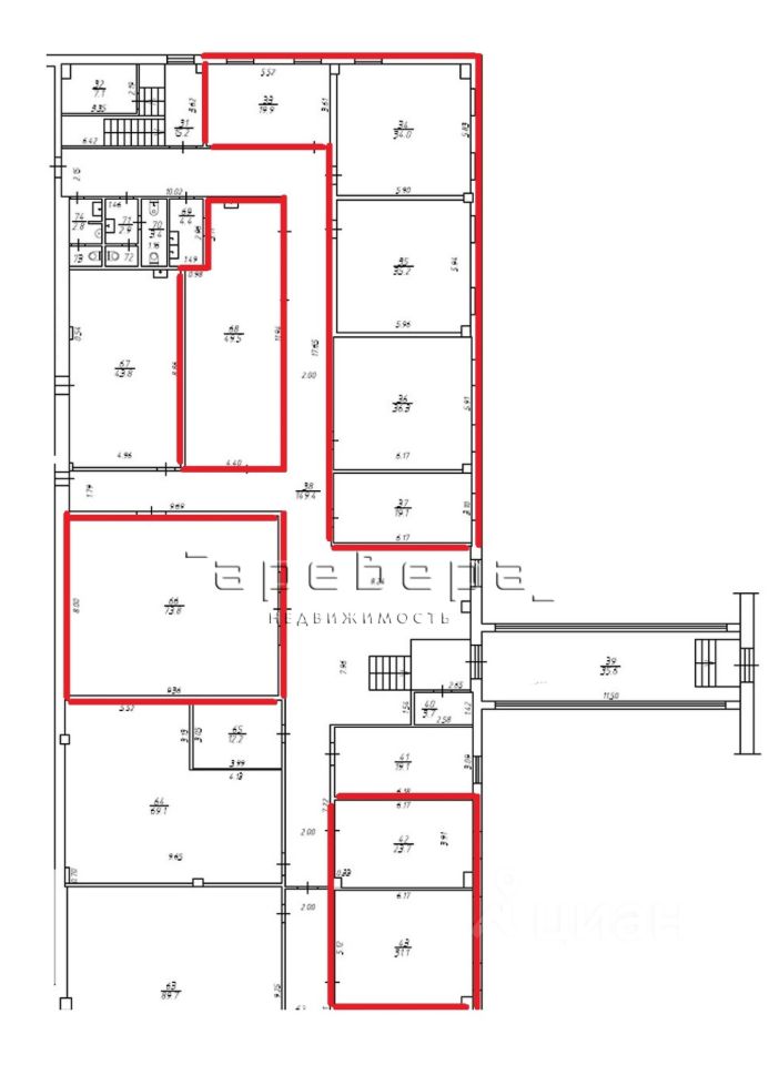
Предлагаем снять в аренду офисное помещение общей площадью 322,6 м2, расположенное по адресу: г.Красноярск, ул.Маерчака, 8, стр.2.
Второй этаж, кабинетная планировка (9 кабинетов площадью 19,9 м2, 34 м2, 35,2 м2, 36,3 м2, 19,1 м2, 23,7 м2, 31,1 м2, 49,5 м2, 73,8 м2), два с/узла, видеонаблюдение, интернет, круглосуточная охрана.
Помещение расположено в районе с развитой инфраструктурой, рядом размещены кафе, банк, магазины, остановки общественного транспорта.
Удобная транспортная доступность, до офисного центра легко добраться из любой точки города.
Арендатор услуги агентства недвижимости не оплачивает.













