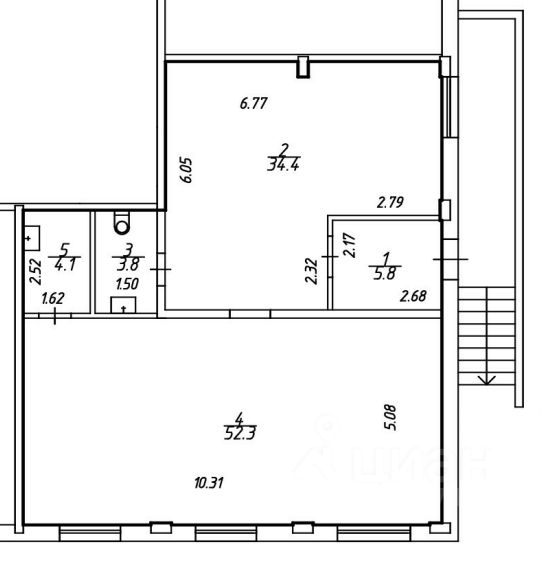
Предлагается нежилое помещение 100,4 м.кв. на цокольном этаже в ЖК ''ЭКО'' дом 1, поселок Солонцы.
Помещение полностью подготовлено к использованию, все коммуникации подведены, осталось только выполнить отделку под ваш проект.
Пространство представляет собой ''Белый куб'' - вы можете реализовать любой дизайн и концепцию.
Район активно застраивается жилыми комплексами, а инфраструктура развивается быстрыми темпами, обеспечивая постоянный поток потенциальных клиентов. Ежедневно мимо проходят сотни жителей и гостей района, что гарантирует высокую проходимость и отличные возможности для бизнеса.
Уникальное предложение на рынке: в округе нет аналогов, что даёт вам преимущество для успешного старта!
Собственник, РАЗУМНЫЙ ТОРГ!










