сдам офисное помещение, Деповская, 15455 000 ₽ в месяц
28 окт
Дата публикации объявления
Обн. 4 мая
Дата обновления объявления
498
Количество просмотров (+ просмотры за сегодня)
1300 ₽/м² в месяц
Параметры
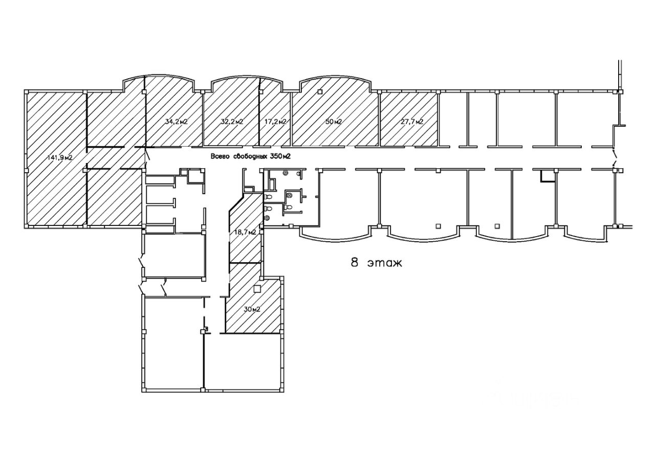
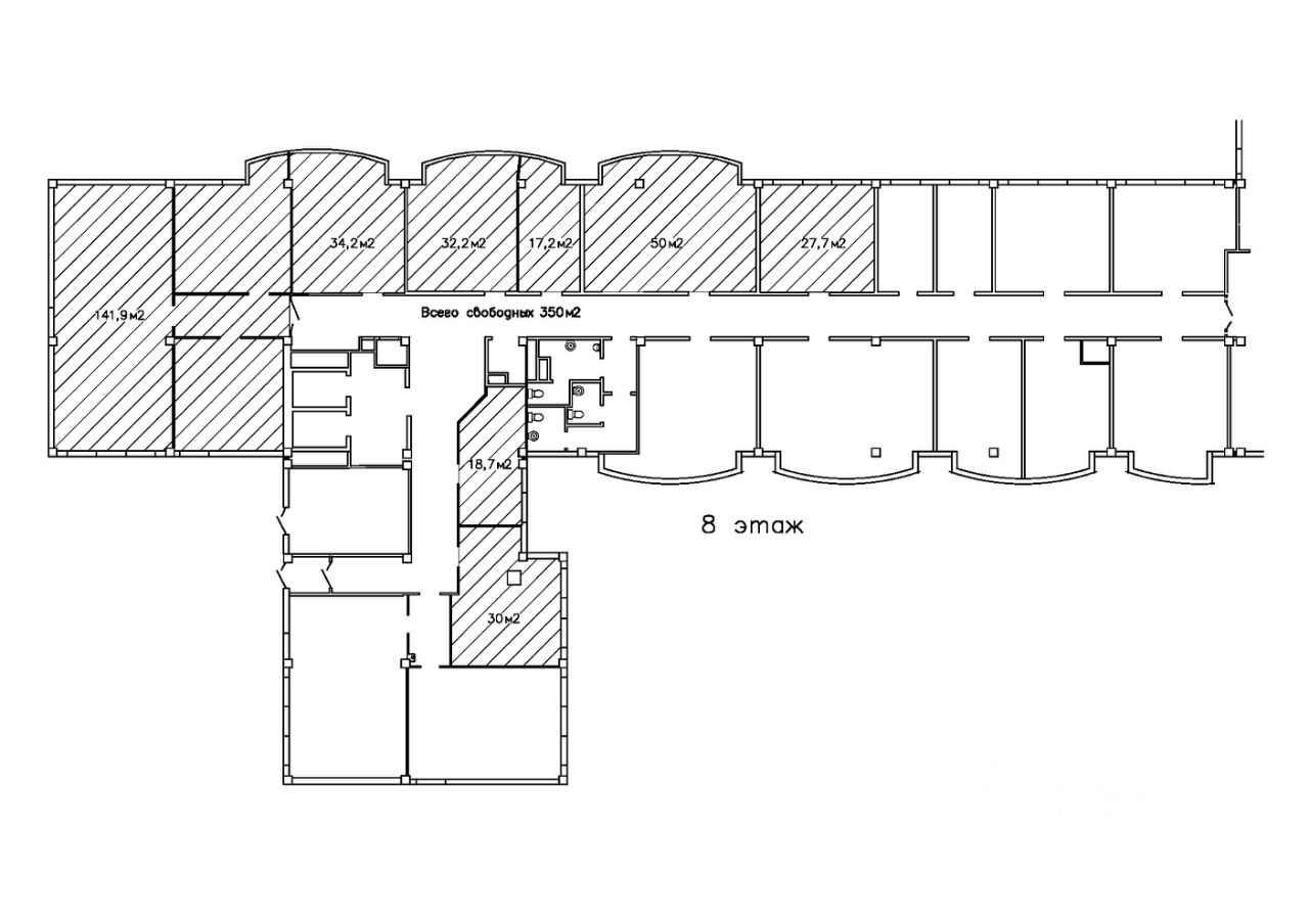
Общая площадь350 м2
Этаж8
Год постройки2015
Качественная отделка, полное отсутствие экологически вредных материалов и подвесных потолков, светодиодное освещение, компьютерная сеть с шкафом телекоммуникационным, вентиляция, кондиционирование. Площадь помещений от 20 до 370 метров кв.