сдам универсальное помещение, Мира проспект, 122135 000 ₽ в месяц
21 ноя
Дата публикации объявления
Обн. 1 апр
Дата обновления объявления
318
Количество просмотров (+ просмотры за сегодня)
1000 ₽/м² в месяц
Параметры
Общая площадь135 м2
Этаж1
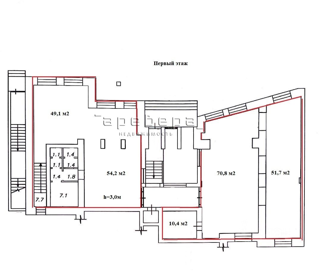
Предлагаем снять в аренду торгово-офисное помещение, расположенное по адресу: г.Красноярск, пр.Мира, 122. Общая площадь 135 м2 (есть возможность арендовать весь этаж - 270 м2). Хорошее состояние: керамогранит на полу, подвесные потолки, стены окрашены. Два просторных зала, подсобные помещения. Высокие потолки — 3,0 м. Хорошее освещение. Кондиционеры во всех помещениях. Центральный вход с пр. Мира, запасной выход во двор. Место с отличной локацией, в котором сосредоточены бутики современной модной одежды, аксессуаров премиального сегмента и другие заведения премиального и среднего класса. Первая линия. Активный пешеходный трафик. Высокий транспортный поток. Удобная транспортная развязка.
Условия аренды: дополнительно оплачиваются расходы за свет и воду.
Предлагаем снять в аренду торгово-офисное помещение, расположенное по адресу: г.Красноярск, пр.Мира, 122. Общая площадь 135 м2 (есть возможность арендовать весь этаж - 270 м2). Хорошее состояние: керамогранит на полу, подвесные потолки, стены окрашены. Два просторных зала, подсобные помещения. Высокие потолки — 3,0 м. Хорошее освещение. Кондиционеры во всех помещениях. Центральный вход с пр. Мира, запасной выход во двор. Место с отличной локацией, в котором сосредоточены бутики современной модной одежды, аксессуаров премиального сегмента и другие заведения премиального и среднего класса. Первая линия. Активный пешеходный трафик. Высокий транспортный поток. Удобная транспортная развязка.
Условия аренды: дополнительно оплачиваются расходы за свет и воду. Услуги агентства недвижимости арендатор не оплачивает.