Помещения под офис, медицинский центр, производство
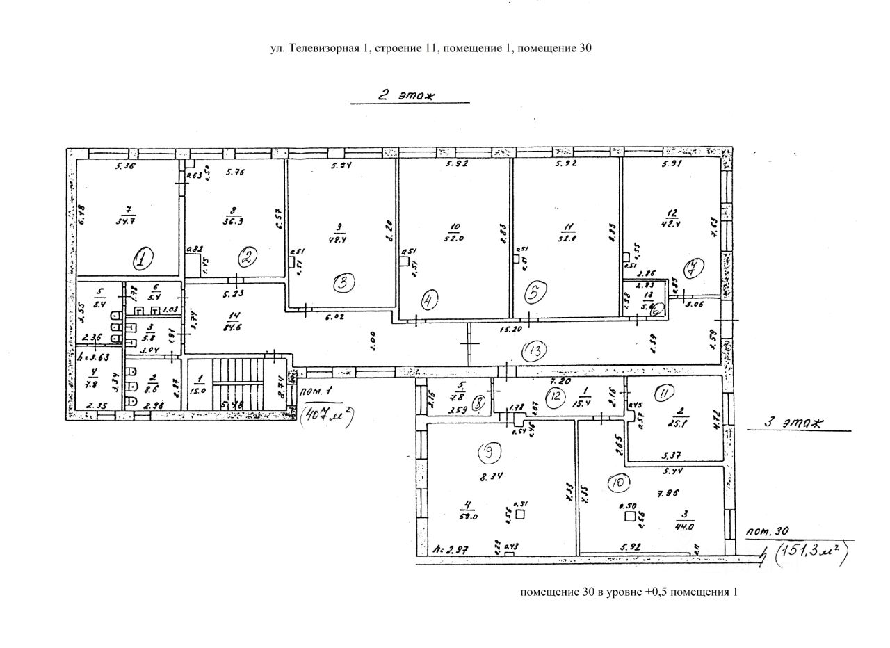
Сдается нежилое помещение общей площадью 550 м2, стоимость 500 рублей за 1м2 в месяц, ул. Телевизорная 1, строение 11, 1-я линия, 2 этаж, отдельный вход с тыльной стороны, внутренний дворик, свой ИТП, система контроля и управления доступом (СКУД), охранно-пожарная сигнализация. Постановка на охрану как помещения в целом, так и отдельной комнаты. Удобно для одного или двух независимых арендаторов по 225 м2 общей площади помещение разделено перегородкой с системой контроля доступа. Возможна аренда отдельных комнат. Рядом торговые площади, кафе, столовые. Прилегающая территория в течении 1-2 лет планируется под элитную, многоэтажную застройку. До остановки ГорДК 400 м., рядом несколько парковок.












