Развитая инфраструктура. Всё рядом: садики, школы, магазины, пвз озон и вб, автобусные остановки в любом направлении, Аллея в 15 минутах хотьбы.
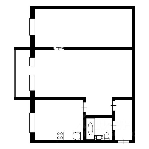
В квартире сделан частичный ремонт. Большая комната полностью готова к заселению. Всё остальное пространство требует ремонтных доработок. Условия их реализации по договоренности.
Что нужно сделать по ремонту: В коридоре и маленькой комнате требуется поклейка обоев, нужен небольшой косметический ремонт в ванной и туалете, для комфортного проживания нужна замена внутренних дверей, укладка линолеума на пол.
Развитая инфраструктура. Всё рядом: садики, школы, магазины, пвз озон и вб, автобусные остановки в любом направлении, Аллея в 15 минутах хотьбы.
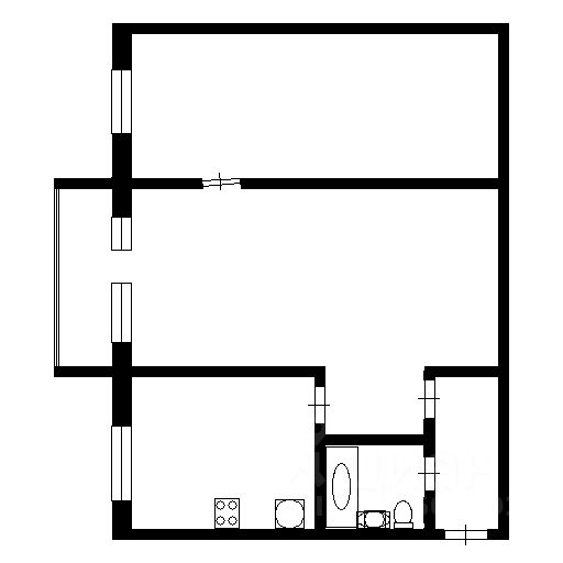
В квартире сделан частичный ремонт. Большая комната полностью готова к заселению. Всё остальное пространство требует ремонтных доработок. Условия их реализации по договоренности.
Что нужно сделать по ремонту: В коридоре и маленькой комнате требуется поклейка обоев, нужен небольшой косметический ремонт в ванной и туалете, для комфортного проживания нужна замена внутренних дверей, укладка линолеума на пол.
Мебели и техники минимум: кухонный гарнитур, угловой плательный шкаф, кресло-кровать, стиральная машина-автомат, холодильник, плита. Всё в рабочем состоянии.
Условия аренды: Ищем аккуратных, добропорядочных арендаторов, готовых обустраивать квартиру под себя. Условия ремонта обговариваем лично и по телефону. Рассматриваем только длительный срок аренды.
Оплата: 20 000 рублей в месяц+ Коммунальные платежи: оплачиваются отдельно по счётчикам. Квартира свободна. Показ по договорённости.