Дом, Сенная, 15 Показать на карте
Кировский район
Красноярск
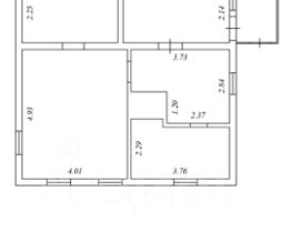
Продается кирпичный коттедж в городской черте площадью 204,8 кв.м. с земельным участком 15,91 сотки, 2015 года постройки. Коттедж в собственности. Земельный участок категория ИЖС. Есть городская прописка. Коттедж двухэтажный, с встроенным гаражом. На первом этаже расположена большая кухня-гостиная и санузел, на втором этаже расположены две комнаты и санузел. Имеется еще одна промежуточная комната между 1 и 2 этажом, над гаражом. Имеется подвальный этаж. В коттедж заведено электричество, сделана разводка проводки по коттеджу. На крыше сделаны новые металлические водостоки. Имеется канализация. Сделана подводка для сантехники. Залиты черновые полы. Лежат новые (в упаковке) автоматический котел Zota Optima мощностью 32 кВт и водонагреватель косвенного нагрева Gorenje на 200 литров. До установки руки не дошли. Продаются вместе с коттеджем. Коттедж находится в хорошем месте, на возвышенности относительно остального города, в связи с чем воздух чистый. Смога нет. Подъездные пути хорошие. Вокруг активно ведется строительство других домов.Дополнительно оплачивается комиссия с покупателя.Комиссия на покупку данного типа недвижимости:- при стоимости объекта недвижимости до 8 000 000 рублей составляет 20 000 рублей + 2% от стоимости объекта недвижимости, но не менее 50 000 рублей при работе со специалистом по недвижимости,- при стоимости объекта недвижимости от 8 000 000 рублей составляет 2% от стоимости объекта недвижимости при работе со специалистом по недвижимости,- при стоимости объекта недвижимости до 8 000 000 рублей составляет 30 000 рублей + 2% от стоимости объекта недвижимости, но не менее 50 000 рублей при работе с экспертом по недвижимости,- при стоимости объекта недвижимости от 8 000 000 рублей составляет 10 000 рублей + 2% от стоимости объекта недвижимости при работе с экспертом по недвижимости,Сделки с агентствами по недвижимости происходят на основании ''Соглашения о совместной сделке''.Код пользователя: 157801Номер в базе: 5910020
204 м2
3 этажа
Кирпич
- Показать контакты
- Добавить в избранное
204 м2
3 этажа
Кирпич
9 900 000
48 340 /м2
