Дом, Вдохновения, 6 Показать на карте
Емельяновская горка ТСН
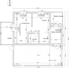
Срочная продажа. Цена снижена, пока продаётся интересующий объект.Дом подходит под ипотеку, возможна рассрочка платежа по договоренности. В продаже благоустроенный дом в поселке ''Емельяновская горска'' в 20 минутах езды от города, напротив Емельяново. Центральная дорога поселка асфальтированная, от асфальта до дома отсыпанный грунт 50метров. По улицам посёлка дороги подсыпаются.Водоснабжение центральное!Улицы освещены, установлено видеонаблюдение.Также имеется своя детская площадка. Два раза в день по посёлку ездит школьный автобус.Дом: Площадь дома составляет 120 кв. м. и имеет 2 этажа с высотой потолков 3 м. Натяжные потолки и пластиковые окна. Дом построен из газобетонных блоков, утеплён ЭППС 50 мм, обшит сайдингом.Первый этаж: Прихожая, совмещенный санузел, кухня-гостиная 33 кв. м., техническая комната (бойлер, электрокотёл) с выходом на террасу и в гараж.Второй этаж: 3 комнаты и совмещенный санузел.В гостиной расположен красивый камин, который обеспечит тепло в прохладные вечера. Оба санузла в кафеле. Бойлер на 80 литров, фильтры для питьевой воды.Отопление: В доме 2 котла: электрический Zota Lux 7.5 кВт и твердотопливный Green Eco 18 кВт, проведено полное ТO, бензиновый генератор на 5.5 кВт, состояние нового. Терраса: Площадь 30 кв. м, построена в конце лета 2022 (сосна). Пол - террасная доска из лиственницы.Гараж:Площадь 50 кв. м. Построен из газобетонных блоков, утеплён ЭППС 50 мм. Автоматические секционные ворота (с брелка и ручной режим). Гараж вмещает 2 машины. Автоматические ворота (с брелка и ручной режим). Свой мусорный бак. Септик расположен так, что спец. машине не нужно заезжать во двор, откачка происходит со стороны проулка. В дом заведён интернет провайдер Игра-сервис (оптика). Электричество - МРСК Россети.Ждём на просмотр!Дополнительно оплачивается комиссия с покупателя.Комиссия на покупку данного типа недвижимости:- при стоимости объекта недвижимости до 8 000 000 рублей составляет 20 000 рублей + 2% от стоимости объекта недвижимости, но не менее 50 000 рублей при работе со специалистом по недвижимости,- при стоимости объекта недвижимости от 8 000 000 рублей составляет 2% от стоимости объекта недвижимости при работе со специалистом по недвижимости,- при стоимости объекта недвижимости до 8 000 000 рублей составляет 30 000 рублей + 2% от стоимости объекта недвижимости, но не менее 50 000 рублей при работе с экспертом по недвижимости,- при стоимости объекта недвижимости от 8 000 000 рублей составляет 10 000 рублей + 2% от стоимости объекта недвижимости при работе с экспертом по недвижимости,Сделки с агентствами по недвижимости происходят на основании ''Соглашения о совместной сделке''.Код пользователя: 169929Номер в базе: 12106667
120 м2
2 этажа
- Показать контакты
- Добавить в избранное
120 м2
2 этажа
9 500 000
79 167 /м2
