Дом, Красноярская, 8 Показать на карте
Тура
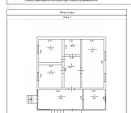
Представляем вашему вниманию стильный и современный одноэтажный дом, расположенный по адресу: ул. Красноярская, д. 8А. Этот уютный брусовой дом, построенный в 2024 году, общей площадью 89,4 м², станет идеальным выбором для семей с детьми, тех, кто мечтает о собственном жилье, или желает улучшить свои жилищные условия.Внутри вас ждут две просторные жилые комнаты общей площадью 22,6 м² и большая кухня-студия (23,7 м²), где будет приятно собираться всей семьей за ужином. Высокие потолки (2,5 м) создают ощущение свободы и простора. Дом полностью готов к проживанию: выполнен свежий косметический ремонт с натяжными потолками, новыми обоями, практичным линолеумом и продуманным освещением. Ванная комната оборудована всем необходимым: современной душевой кабиной, водонагревателем на 100 литров, насосом с емкостью для воды, а также раковиной с зеркалом.Дополнительный комфорт обеспечивают:Просторная веранда (18,3 м²) идеальное место для отдыха на свежем воздухе.Холодный склад (8,8 м²) для хранения вещей.На территории двора: уютная баня (39,6 м²) и вместительный гараж на две машины (42,3 м²).Для ваших питомцев предусмотрен просторный вольер.Овощехранилище (6м²), которое можно использовать как теплый или холодный склад.Удобный уличный туалет.Дом очень светлый и теплый, окна выходят как на улицу, так и во двор, наполняя комнаты естественным светом. Большая веранда с панорамными окнами приглашает насладиться видами природы и провести время на свежем воздухе. Часть мебели остается в доме и входит в стоимость. Удобная инфраструктура: в шаговой доступности находятся детский сад, школа, аптека, магазины и медицинские учреждения все, что нужно для комфортной жизни вашей семьи.
89 м2
1 этаж
Дерево
- Показать контакты
- Добавить в избранное
89 м2
1 этаж
Дерево
8 500 000
95 078 /м2
