2-к, Свободный проспект, 49 Показать на карте
Железнодорожный район, Свободный пр-т
Красноярск
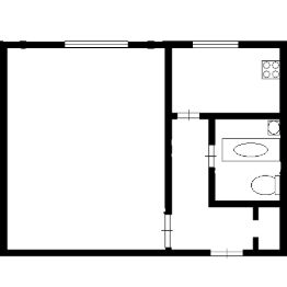
Продам 2-комнатную квартиру в г. Красноярске, в Железнодорожном районе проспект Свободный, район парка Гагарина (ост. Красномосковская ). Площадь квартиры 43.1 кв.м, квартира очень светлая и теплая, расположена на 4 этаже/5 этажного кирпичного дома. Состояние требует ремонта, окна Пвх, балкон застеклен, электроплита, входная металлическая дверь. Рядом проживают спокойные и добропорядочные соседи, в подъезде всегда чисто и убрано, нет не приятных запахов. Развитая инфраструктура, легко добираться до учебных и торгово-развлекательных заведений г. Красноярска. Рядом с домом находится средняя школа 19, гимназия 9, детские сады 8, 131, стоматология, супермаркеты, магазины, аптеки, парикмахерские, в общем есть все для комфортного проживания. По документам все чисто, нет арестов и обременений, 1 взрослый собственник, вся сумма в договоре. Цена: 4 000 000 рублей.
До центра ~ 25 мин
Приблизительное время на общественном транспорте до Театральная площадь (Центр) – 25 мин
43 м2
4 / 5 этаж
Кирпич
- Показать контакты
- Добавить в избранное
43 м2
4 / 5 этаж
Кирпич
4 000 000
92 807 /м2
