1-к, Щербакова, 8 Показать на карте
Кировский район, Первомайский
Красноярск
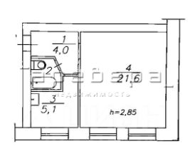
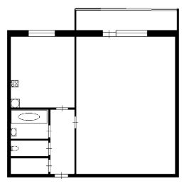
Продается уютная однокомнатная квартира в Красноярске на улице Щербакова, 8. Общая площадь квартиры составляет 33 кв. м, из которых жилая площадь — 20 кв. м. Квартира расположена на первом этаже пятиэтажного панельного дома, построенного в 1978 году. Просторная кухня площадью 8 кв. м станет отличным местом для кулинарных экспериментов.В квартире выполнен косметический ремонт, что позволит вам въехать и жить без дополнительных вложений. Комната светлая и уютная, окна выходят как на улицу, так и во двор, обеспечивая хорошую вентиляцию и естественное освещение. Отдельный санузел добавляет комфорта. Лоджия станет отличным местом для отдыха или хранения вещей.Дом находится в хорошем состоянии, с наземной парковкой для вашего автомобиля, что особенно удобно для жителей первых этажей. Район тихий и зеленый, что делает его идеальным для семейной жизни.В шаговой доступности от дома расположены школы, детские сады и магазины, что обеспечивает удобство в повседневной жизни. Отличная транспортная доступность: остановки общественного транспорта находятся в нескольких минутах ходьбы, что позволяет быстро добраться до любой Один взрослый собственник, что значительно ускорит процесс оформления сделки. Возможна покупка в ипотеку. Приглашаем вас на просмотр, чтобы вживую оценить все преимущества этой квартиры. Звоните и записывайтесь на удобное для вас время!
До центра ~ 35 мин
Приблизительное время на общественном транспорте до Театральная площадь (Центр) – 35 мин
33 м2
1 / 5 этаж
Панель
- Показать контакты
- Добавить в избранное
33 м2
1 / 5 этаж
Панель
3 100 000
93 939 /м2
