4-к, Щорса, 77 Показать на карте
Кировский район, Первомайский
Красноярск
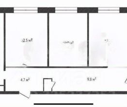
Предлагается к продаже четырехкомнатная квартира, расположенная на первом этаже пятиэтажного панельного дома. Планировка квартиры-ленинградка. Три комнаты в квартире раздельные, одна проходная. Санузел совмещен, балкона нет. Окна, не смотря на то, что это первый этаж, находятся высоко.Состояние квартиры: Окна ПВХ, радиаторы отопления AL и чугун. Стены-обои, на полу линолеум. Санузел в кафеле, сантехника в хорошем рабочем состоянии, установлена ванна с гидромассажем.Квартира расположена на первом этаже можно использовать как нежилое.Просторный двор, оборудован детской площадкой, есть места для парковки машин.Отличная транспортная доступность.Инфраструктура района развита. В шаговой доступности школа 135, лицей 6, д.сад 278., много магазинов, киосков., Для отдыха рядом Дворец культуры Кировского района, Кировский сквер.Квартира продается без условий. Мат.капитал не использовался. Обременений нет.Покупатель, при покупке данного объекта оплачивает проведение сделки.Если остались вопросы, звоните с 9.00 до 20.00 часов.
До центра ~ 40 мин
Приблизительное время на общественном транспорте до Театральная площадь (Центр) – 40 мин
64 м2
1 / 5 этаж
Панель
- Показать контакты
- Добавить в избранное
64 м2
1 / 5 этаж
Панель
8 000 000
124 031 /м2
