3-к, Мате Залки, 6 Показать на карте
Советский район, Северный
Красноярск
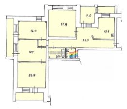
Продается трехкомнатная квартира 64.8 м2 в панельном доме улучшенной планировки. Удобная планировка: все комнаты изолированы, просторный зал, спальни, окна выходят на две стороны, санузел раздельный. Большой балкон на две комнаты, не застеклен. Квартира требует ремонта, заменены радиаторы и окна, туалет в кафеле.В 5 минутах ходьбы находятся школа 147 и детский сад 316. В шаговой доступности: гипермаркеты ''Аллея'' и ''Лента'', а также ТЦ ''Махаон'', аптеки и объекты повседневного спроса. Имеется развитая транспортная сеть, с удобными выездами на основные магистрали города.Полное юридическое сопровождение сделки.Свяжитесь со мной, для организации просмотра, в удобное для вас время.Дополнительно оплачивается комиссия с покупателя.Комиссия на покупку данного типа недвижимости:- при стоимости объекта недвижимости до 8 000 000 рублей составляет 20 000 рублей + 2% от стоимости объекта недвижимости, но не менее 50 000 рублей при работе со специалистом по недвижимости,- при стоимости объекта недвижимости от 8 000 000 рублей составляет 2% от стоимости объекта недвижимости при работе со специалистом по недвижимости,- при стоимости объекта недвижимости до 8 000 000 рублей составляет 30 000 рублей + 2% от стоимости объекта недвижимости, но не менее 50 000 рублей при работе с экспертом по недвижимости,- при стоимости объекта недвижимости от 8 000 000 рублей составляет 10 000 рублей + 2% от стоимости объекта недвижимости при работе с экспертом по недвижимости,Сделки с агентствами по недвижимости происходят на основании ''Соглашения о совместной сделке''.Код пользователя: 172541Номер в базе: 10163660
До центра ~ 45 мин
Приблизительное время на общественном транспорте до Театральная площадь (Центр) – 45 мин
64 м2
6 / 9 этаж
Панель
- Показать контакты
- Добавить в избранное
64 м2
6 / 9 этаж
Панель
7 900 000
121 914 /м2
