3-к, им газеты Красноярский Рабочий проспект, 122 Показать на карте
Кировский район, Торговый центр
Красноярск
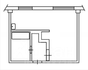
Продается просторная трехкомнатная квартира на третьем этаже в обжитом и инфраструктурно развитом районе. Объект отличается удобной стандартной планировкой с правильными формами комнат, одна из которых является проходной. Квартира светлая, теплая и тихая, что обеспечивает комфорт для постоянного проживания. В подъезде функционируют два лифта.Ключевым преимуществом является исключительное расположение. Рядом находятся торговый центр ''Красноярье'' с бесплатной парковочной площадкой перед домом, Сибирский федеральный университет (Институт цветных металлов), школа и два детских сада в шаговой доступности. Транспортная развязка района отличная, остановки общественного транспорта расположены близко. Для отдыха и прогулок в непосредственной близости расположены благоустроенная набережная Енисея с пешеходными зонами и сквер Энтузиастов. Данный набор характеристик делает объект оптимальным выбором для семьи, ценящей практичность, развитую городскую среду и транспортную доступность.Дополнительно оплачивается комиссия с покупателя.Комиссия на покупку данного типа недвижимости:- при стоимости объекта недвижимости до 8 000 000 рублей составляет 20 000 рублей + 2% от стоимости объекта недвижимости, но не менее 50 000 рублей при работе со специалистом по недвижимости,- при стоимости объекта недвижимости от 8 000 000 рублей составляет 2% от стоимости объекта недвижимости при работе со специалистом по недвижимости,- при стоимости объекта недвижимости до 8 000 000 рублей составляет 30 000 рублей + 2% от стоимости объекта недвижимости, но не менее 50 000 рублей при работе с экспертом по недвижимости,- при стоимости объекта недвижимости от 8 000 000 рублей составляет 10 000 рублей + 2% от стоимости объекта недвижимости при работе с экспертом по недвижимости,Сделки с агентствами по недвижимости происходят на основании ''Соглашения о совместной сделке''.Код пользователя: 182938Номер в базе: 12035173
54 м2
3 / 12 этаж
Панель
- Показать контакты
- Добавить в избранное
54 м2
3 / 12 этаж
Панель
7 000 000
129 630 /м2
