Если цена в объявлении изменится, мы сразу сообщим вам об этом на электронную почту.
Нажимая «Подписаться», вы соглашаетесь с правилами.
продам дом, Лесная, 149 000 000 ₽
25 фев 2024
Дата публикации объявления
Обн. 24 дек
Дата обновления объявления
16
Количество просмотров (+ просмотры за сегодня)
68 337 ₽/м²
Чистая продажа
Термин "Чистая продажа" означает, что в квартире никто не прописан или
есть куда выписаться и вывезти вещи. Это лучший вариант для покупателя.
Вероятность срыва сделки минимальна.
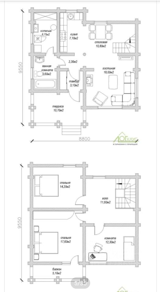
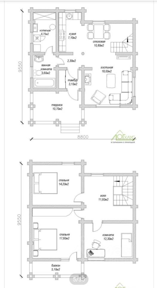
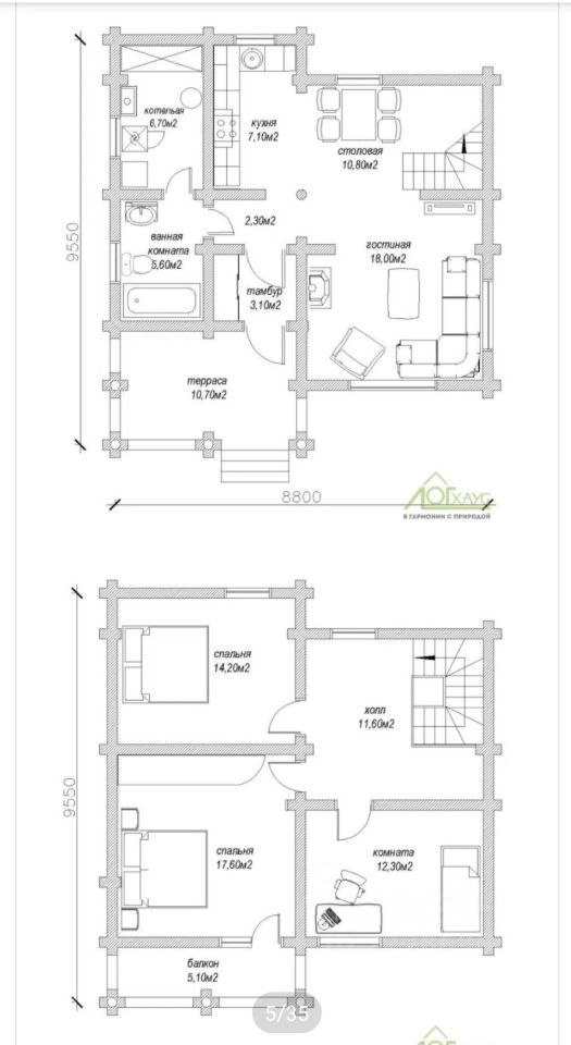
Этажей2
Площадь участка11,5 соток
Общая площадь131,7 м2
Материал домадерево
ЭлектричествоЕсть
Газоснабжениенет
Продам дом по индивидуальному проекту. Район Сухой балки(ДНТ Изумрудный Луг). 7 км от города Красноярска, (45 минут на машине от центра города). Участок 11,5 соток, свет, вода. Дом из оцилиндрованного бревна (28 д) 9*10 м со вторым этажом, отшлифован, проконопачен, покрыт пропиткой с воском. Стоят качественные окна, двери. В дом проведена вода, сделан септик 12м3, на первом этаже тёплый пол. На участке имеются строения: гараж на 2 машины, и 2 подсобных помещения (в одном из которых подвал, во втором котельная) , сруб бани 5 на 7 из бруса 150х100, летняя кухня 3х4, летний душ +туалет. Небольшой огород чуть больше сотки. А также сад (яблони, вишни, груши, сливы, абрикос) кустарники (жимолость, смородина, крыжовник, малина, еживика, голубика). Все документы на руках. Круглогодичный подъезд.
Продам дом по индивидуальному проекту. Район Сухой балки(ДНТ Изумрудный Луг). 7 км от города Красноярска, (45 минут на машине от центра города). Участок 11,5 соток, свет, вода. Дом из оцилиндрованного бревна (28 д) 9*10 м со вторым этажом, отшлифован, проконопачен, покрыт пропиткой с воском. Стоят качественные окна, двери. В дом проведена вода, сделан септик 12м3, на первом этаже тёплый пол. На участке имеются строения: гараж на 2 машины, и 2 подсобных помещения (в одном из которых подвал, во втором котельная) , сруб бани 5 на 7 из бруса 150х100, летняя кухня 3х4, летний душ +туалет. Небольшой огород чуть больше сотки. А также сад (яблони, вишни, груши, сливы, абрикос) кустарники (жимолость, смородина, крыжовник, малина, еживика, голубика). Все документы на руках. Круглогодичный подъезд. Звонить с 18.00 до 21.00