Если цена в объявлении изменится, мы сразу сообщим вам об этом на электронную почту.
Нажимая «Подписаться», вы соглашаетесь с правилами.
продам дом, Воскресенская, 89 500 000 ₽
29 ноя 2024
Дата публикации объявления
Обн. 16 мая
Дата обновления объявления
21
Количество просмотров (+ просмотры за сегодня)
41 304 ₽/м²
Чистая продажа
Термин "Чистая продажа" означает, что в квартире никто не прописан или
есть куда выписаться и вывезти вещи. Это лучший вариант для покупателя.
Вероятность срыва сделки минимальна.
Этажей1
Площадь участка10 соток
Общая площадь230 м2
Материал домабетонные блоки
ЭлектричествоЕсть
Газоснабжениенет
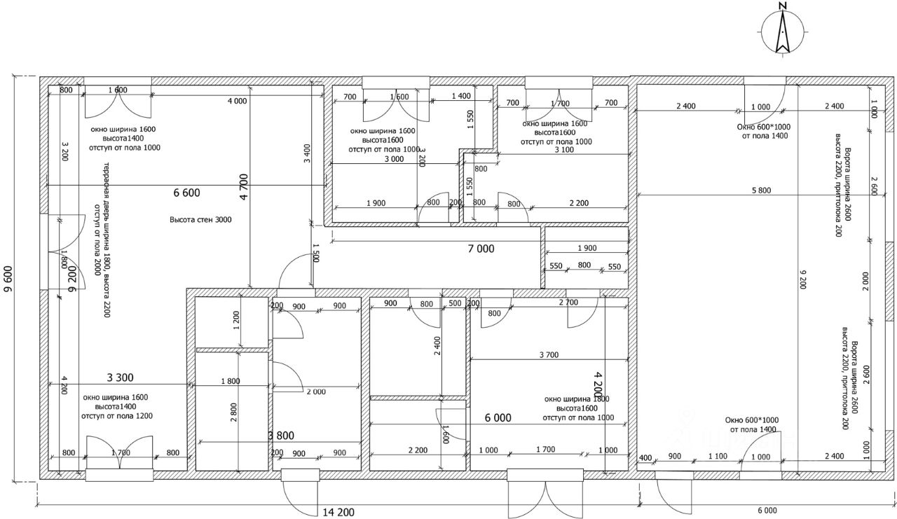
Учитывая формирование тренда сезона 2025-2026 на одноэтажные дома в направлении загородного строительства застройщик коттеджного поселка Емельяновская горка сделал достойное предложение на рынке для тех, кто знает и ценит все преимущества проживания в одноэтажном доме. В этой планировке оптимально учтены современные тенденции и расположение помещений. В студии (гостинная-кухня) потолки высотой 3м , окна в пол с выходом на террасу. Имеются 2 просторные комнаты и мастер-спальня, 3 санузла, гардеробная. Дом построен из Теплоблока толщина стен 300мм, монолитное перекрытие 1 этаж, с встроенной системой теплый пол, стены -цементно-песчаная штукатурка с финишной гипсовой шпатлевкой.
Учитывая формирование тренда сезона 2025-2026 на одноэтажные дома в направлении загородного строительства застройщик коттеджного поселка Емельяновская горка сделал достойное предложение на рынке для тех, кто знает и ценит все преимущества проживания в одноэтажном доме. В этой планировке оптимально учтены современные тенденции и расположение помещений. В студии (гостинная-кухня) потолки высотой 3м , окна в пол с выходом на террасу. Имеются 2 просторные комнаты и мастер-спальня, 3 санузла, гардеробная. Дом построен из Теплоблока толщина стен 300мм, монолитное перекрытие 1 этаж, с встроенной системой теплый пол, стены -цементно-песчаная штукатурка с финишной гипсовой шпатлевкой. Межкомнатные двери Альберо, натяжные потолки, пол - линолеум, медная электропроводка с установкой розеток и выключателей. Система отопления-Электрокотел Зота 12 кВТ, теплый водяной пол. Гараж на 2 автомобиля с 2 воротами. Дом расположен в коттеджном поселке ''Емельяновская горка'' по улице Дружбы соседей, 5. Это наверное самый динамичный поселок в Красноярске. В настоящее время в поселке построено и заселено более 260 домов, организована вся необходимая инфраструктура, отсыпаны дороги, построена ЛЭП и централизованный водопровод, уличное освещение. Есть управляющая компания. Прописка пгт. Емельяново, а это районный центр со всеми объектами социального назначения, магазины, больницы, детские сады, школы. Ходит школьный автобус. Особенно хочется отметить тенденцию на протяжении последних трех лет на спрос наших домов у молодой публики. Преобладающие покупатели это молодые семьи возрастом до 35 лет. За 10 лет существования поселка сформировался дружный и социально активный коллектив жителей. Много ребятишек. Предложение от собственника-застройщика. Работаем с ипотечными программами семейная и сельская ипотека 3%. Возможно привлечение материнского капитала. Рассмотрю вариант обмена на квартиру в г. Красноярске.