Если цена в объявлении изменится, мы сразу сообщим вам об этом на электронную почту.
Нажимая «Подписаться», вы соглашаетесь с правилами.
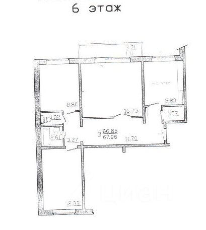
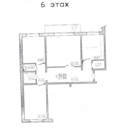
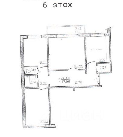
продам 3-к, Чернышевского, 7310 000 000 ₽
17 мар 2025
Дата публикации объявления
Обн. 24 апр
Дата обновления объявления
47
Количество просмотров (+ просмотры за сегодня)
147 145 ₽/м²
Чистая продажа
Термин "Чистая продажа" означает, что в квартире никто не прописан или
есть куда выписаться и вывезти вещи. Это лучший вариант для покупателя.
Вероятность срыва сделки минимальна.