Если цена в объявлении изменится, мы сразу сообщим вам об этом на электронную почту.
Нажимая «Подписаться», вы соглашаетесь с правилами.
продам универсальное помещение, Ленина, 3/150 833 333 ₽
30 апр 2025
Дата публикации объявления
Обн. вчера
Дата обновления объявления
7
Количество просмотров (+ просмотры за сегодня)
20 506 ₽/м²
Параметры
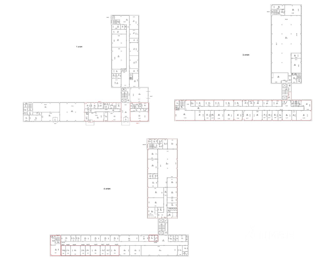
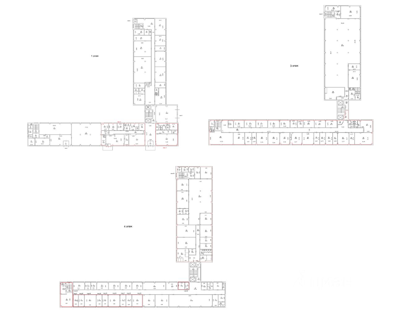
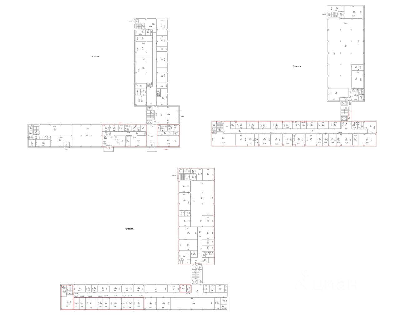
Общая площадь2479 м2
Этаж1
Уникальное предложение! Продается комплекс нежилых помещений общей площадью 2 479,6кв.м. в развитом районе г. Канска. Гарантированный доход с первого месяца после покупки от действующих арендаторов.
Здание расположено в административной части города, в ближайшем окружении находятся Администрация города, Канский технологический колледж, общежитие колледжа, поликлиника, школы, детские сады, отделения банков, что создает большие возможности для бизнеса.
Возможны перепланировки под нужды собственника.
Центральные коммуникации (горячее водоснабжение - бойлер). Возможность подключения высокоскоростного интернета, городского номера телефона.
Уникальное предложение! Продается комплекс нежилых помещений общей площадью 2 479,6кв.м. в развитом районе г. Канска. Гарантированный доход с первого месяца после покупки от действующих арендаторов.
Здание расположено в административной части города, в ближайшем окружении находятся Администрация города, Канский технологический колледж, общежитие колледжа, поликлиника, школы, детские сады, отделения банков, что создает большие возможности для бизнеса.
Возможны перепланировки под нужды собственника.
Центральные коммуникации (горячее водоснабжение - бойлер). Возможность подключения высокоскоростного интернета, городского номера телефона.
Основные характеристики:
Год постройки: 1986
Состояние: удовлетворительное
Назначение: Помещения свободного назначения, с удобной кабинетной планировкой и высокими потолками — идеальное решение для команд, ценящих комфорт и функциональность.
Земельный участок: долгосрочный договор аренды (кад. номер 24:51:0203106:4)
Расположение: Вблизи — автобусная остановка, стихийная парковка, преимущественно объекты общественно-деловой застройки.
Основные преимущества расположения:
- красная линия
- Высокая проходимость
- отличная транспортная доступность
- рядом автобусная остановка
- стихийная парковка
- Высокий автомобильный трафик вдоль здания
- наличие собственной дворовой территории
- наличие отдельных мокрых точек на каждом этаже
- Возможность размещения рекламной конструкции на фасаде (по согласованию с Администрацией города)
Существенные условия сделки:
- заключение краткосрочного договора аренды в пользу продавца площадей 466кв.м. доход в год 1 797,6млн. руб. без НДС,
- в здании несколько собственников
Продажа осуществляется напрямую от собственника — ПАО ''Ростелеком''.
Цена включает НДС 22% и учитывает текущее состояние зданий.
Часть помещений сдано в краткосрочную аренду, площадью 190,3кв.м. с гарантированным ежегодным доходом 573тыс. руб. без НДС.
Не упустите шанс приобрести выгодный актив! Звоните, и мы с радостью ответим на все ваши вопросы.