Если цена в объявлении изменится, мы сразу сообщим вам об этом на электронную почту.
Нажимая «Подписаться», вы соглашаетесь с правилами.
продам дом, Зеленая (Мечта СНТ)3 900 000 ₽
13 авг
Дата публикации объявления
Обн. вчера
Дата обновления объявления
93
(+2)
Количество просмотров (+ просмотры за сегодня)
64 784 ₽/м²
Чистая продажа
Термин "Чистая продажа" означает, что в квартире никто не прописан или
есть куда выписаться и вывезти вещи. Это лучший вариант для покупателя.
Вероятность срыва сделки минимальна.
Этажей1
Площадь участка3 сотки
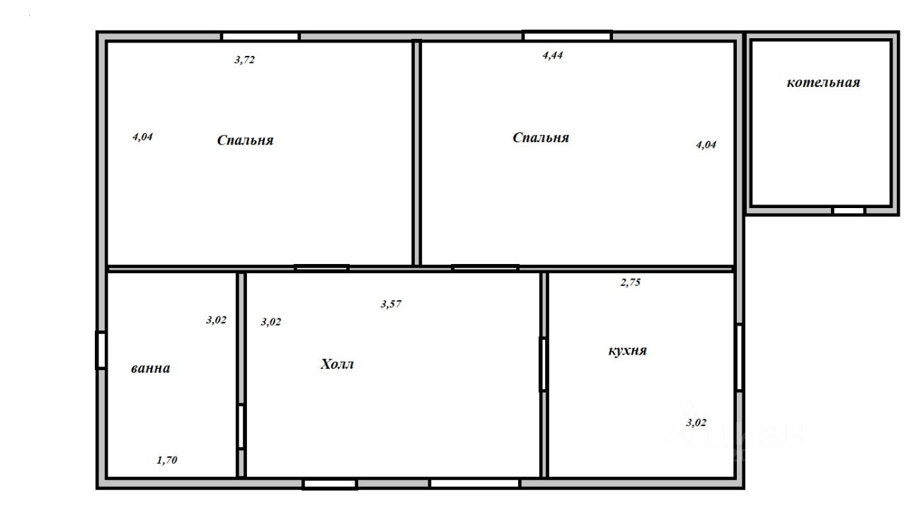
Общая площадь60,2 м2
Материал домабетонные блоки
ЭлектричествоЕсть
Газоснабжениенет
Продаётся дом. Дом расположен в СНТ Мечта, дому присвоен городской адрес Красноярск, ул. Монтажников д.61/131б, прописка, круглогодичное проживание. ЗА НАЛИЧНЫЙ РАСЧЁТ ЦЕНА ОБСУЖДАЕТСЯ. Дом построен из блоков (сибит), через два три ряда блоков сделаны сейсмо пояса, выстоялся год, полностью обшит утеплителем, оштукатурен и покрашен. На полу залита стяжка, сделан теплый пол, окна ПВХ, в ванной кафель, на данный момент полностью сделана разводка по отоплению и повешены батареи, натяжные потолки. Есть скважина-26м - вода чистая, прозрачная, септик - 3,6м глубиной, помещение для установки котла. Участок ровный, чернозём. До остановки Сады-43, 5 минут пешком. Обременений, ограничений нет. Вся сумма в договоре.
Продаётся дом. Дом расположен в СНТ Мечта, дому присвоен городской адрес Красноярск, ул. Монтажников д.61/131б, прописка, круглогодичное проживание. ЗА НАЛИЧНЫЙ РАСЧЁТ ЦЕНА ОБСУЖДАЕТСЯ. Дом построен из блоков (сибит), через два три ряда блоков сделаны сейсмо пояса, выстоялся год, полностью обшит утеплителем, оштукатурен и покрашен. На полу залита стяжка, сделан теплый пол, окна ПВХ, в ванной кафель, на данный момент полностью сделана разводка по отоплению и повешены батареи, натяжные потолки. Есть скважина-26м - вода чистая, прозрачная, септик - 3,6м глубиной, помещение для установки котла. Участок ровный, чернозём. До остановки Сады-43, 5 минут пешком. Обременений, ограничений нет. Вся сумма в договоре. Подходит любая форма расчёта, КРОМЕ Семейной ипотеки. и Сельской.