Если цена в объявлении изменится, мы сразу сообщим вам об этом на электронную почту.
Нажимая «Подписаться», вы соглашаетесь с правилами.
продам коттедж, Балтийская, 3720 000 000 ₽
2 дек
Дата публикации объявления
Обн. 9 мар
Дата обновления объявления
25
Количество просмотров (+ просмотры за сегодня)
100 000 ₽/м²
Чистая продажа
Термин "Чистая продажа" означает, что в квартире никто не прописан или
есть куда выписаться и вывезти вещи. Это лучший вариант для покупателя.
Вероятность срыва сделки минимальна.
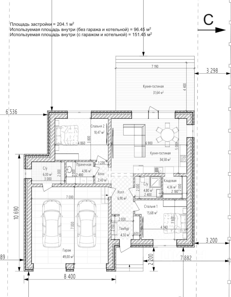
Этажей1
Площадь участка10 соток
Общая площадь200 м2
Материал домакирпич
ЭлектричествоЕсть
Газоснабжениенет
СОБСТВЕННИК ! Продается уютный дом в закрытом поселке Скандинавия!
СОБСТВЕННИК ! Продается уютный дом в закрытом поселке Скандинавия!
Преимущества поселка: • Закрытая территория • Детская площадка • Магазин
Основные характеристики дома: • Фундамент: надежные буронабивные сваи • Плита по ростверку: 200 мм, обеспечивающая прочность и долговечность • Утепление плиты: 100 мм, что гарантирует комфортную температуру в любое время года • Стены: 250 мм кирпич с утеплением 100 мм и облицовкой из кирпича 100 мм — отличный выбор для защиты от холода и шума • Кровля: плита 200 мм с утеплением 200 мм, что обеспечивает надежную защиту от погодных условий • Электричество: мощность 15 кВт, что позволит подключить все необходимые бытовые приборы • Водоснабжение: центральное, что избавляет от необходимости беспокоиться о водоснабжении
Участок: 10 соток — достаточно пространства для создания собственного сада, зоны для отдыха или даже бассейна!