Если цена в объявлении изменится, мы сразу сообщим вам об этом на электронную почту.
Нажимая «Подписаться», вы соглашаетесь с правилами.
продам 2-к, Заводская, 2а5 300 000 ₽
21 дек
Дата публикации объявления
Обн. 10 мар
Дата обновления объявления
29
Количество просмотров (+ просмотры за сегодня)
103 113 ₽/м²
Чистая продажа
Термин "Чистая продажа" означает, что в квартире никто не прописан или
есть куда выписаться и вывезти вещи. Это лучший вариант для покупателя.
Вероятность срыва сделки минимальна.
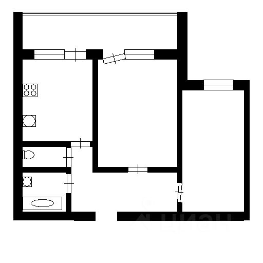
Продается 2-комнатная квартира в Дивногорске. Заводская 2а. 8 этаж. Все окна выходят на солнечную сторону, на споритаый центр, поэтому в квартире всегда светло и тихо. Чтобы летом не страдать от жары установлен кондиционер. На период отключения горячей воды установлен бойлер на 80 литров, он обеспечивает горячей водой и ванную и кухню.
Удобная планировка. Можно убрать две стены- перегородки (внутри квартиры несущих стен нет) и получить большую кухню совмещенную с залом. Есть простроная лоджия ( длина 6 метров), где можно обустроить зону отдыха или использовать для хранения, есть два больших шкафа. Санузел раздельный. В туалете и ванной все трубы заменены на пластиковые. В ванной установлена дополнительная розетка для фена.
Продается 2-комнатная квартира в Дивногорске. Заводская 2а. 8 этаж. Все окна выходят на солнечную сторону, на споритаый центр, поэтому в квартире всегда светло и тихо. Чтобы летом не страдать от жары установлен кондиционер. На период отключения горячей воды установлен бойлер на 80 литров, он обеспечивает горячей водой и ванную и кухню.
Удобная планировка. Можно убрать две стены- перегородки (внутри квартиры несущих стен нет) и получить большую кухню совмещенную с залом. Есть простроная лоджия ( длина 6 метров), где можно обустроить зону отдыха или использовать для хранения, есть два больших шкафа. Санузел раздельный. В туалете и ванной все трубы заменены на пластиковые. В ванной установлена дополнительная розетка для фена. Дом в хорошем состоянии, оснащен пассажирским лифтом и мусоропроводом. На территории дома предусмотрена наземная парковка для жильцов, поэтому у вас всегда будет место для автомобиля.
Уникальный дом для Дивногорска, внешние стены имеют толщину 1 метр. Между всеми квартирами в доме двойные стены, соседи не слышат вас, вы не слышите их. Рядом два садика, магазины, остановка почи во дворе.
В квартире остаются: стиральная машина , кухонный гарнитур, шкаф горка в зале, встроенный шкаф-купе в спальне, кондиционер, бойлер, прихожка в коридоре.
Продажа от собственника. В собственности 25 лет. Один собственник. Квартира без обременений, поэтому можно оформить сделку в кратчайшие сроки. Ипотека возможна.