Если цена в объявлении изменится, мы сразу сообщим вам об этом на электронную почту.
Нажимая «Подписаться», вы соглашаетесь с правилами.
продам 3-к, Крайняя, 29 400 000 ₽
8 янв
Дата публикации объявления
Обн. 15 апр
Дата обновления объявления
13
Количество просмотров (+ просмотры за сегодня)
145 062 ₽/м²
Чистая продажа
Термин "Чистая продажа" означает, что в квартире никто не прописан или
есть куда выписаться и вывезти вещи. Это лучший вариант для покупателя.
Вероятность срыва сделки минимальна.
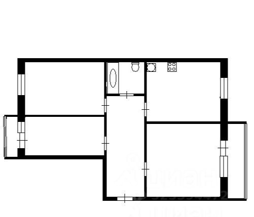
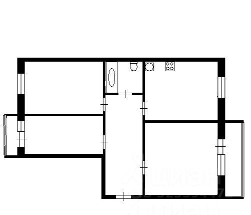
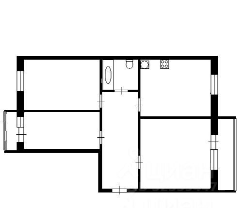
Продаётся уютная 3-комнатная квартира. С агентствами договоры не заключаю, услуги риелторов не оплачиваю. Один взрослый собственник, без обременений и юридических сложностей. Вся сумма в договоре. Квартира свободна, там никто не живёт, можно заезжать после оформления. Куплена в декабре 2025 года, но планы изменились, и там не жила. Находится на берегу Енисея. Со всех окон и балконов очень красивые виды. Площадь 64,8 кв.м. В квартире 2 застеклённых балкона: один - в спальне, второй находится в комнате, где установлен камин. Санузел раздельный. Также имеется компактная сауна. Всё, что на фотографиях из мебели, остаётся в квартире: встроенные холодильник, эл.плита, духовой шкаф, микроволновка, посудомоечная машинка. Есть бойлер. В ванной комнате зеркало с подсветкой.
Продаётся уютная 3-комнатная квартира. С агентствами договоры не заключаю, услуги риелторов не оплачиваю. Один взрослый собственник, без обременений и юридических сложностей. Вся сумма в договоре. Квартира свободна, там никто не живёт, можно заезжать после оформления. Куплена в декабре 2025 года, но планы изменились, и там не жила. Находится на берегу Енисея. Со всех окон и балконов очень красивые виды. Площадь 64,8 кв.м. В квартире 2 застеклённых балкона: один - в спальне, второй находится в комнате, где установлен камин. Санузел раздельный. Также имеется компактная сауна. Всё, что на фотографиях из мебели, остаётся в квартире: встроенные холодильник, эл.плита, духовой шкаф, микроволновка, посудомоечная машинка. Есть бойлер. В ванной комнате зеркало с подсветкой. Торга нет, стоимость максимально снижена до 1 мая.