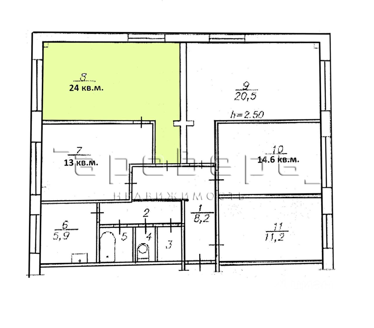
Предлагаю купить долю (комнату 24м) в пяти комнатной квартире в Солнечном. В секции сделан ремонт, и комнаты, и места общего пользования в хорошем состоянии. У одного собственника три комнаты, продаются по отдельности или вместе. При продаже оставляют всю мебель. На данный момент вся секция пустая, никто не живет! Удобное расположение дома, в шаговой доступности средняя школа 134 и детский сад 301. Рядом остановки общественного транспорта, спортивная площадка, футбольный манеж и Храм Воскресения Христова.
Организация и сопровождение сделки оплачивается отдельно.



















