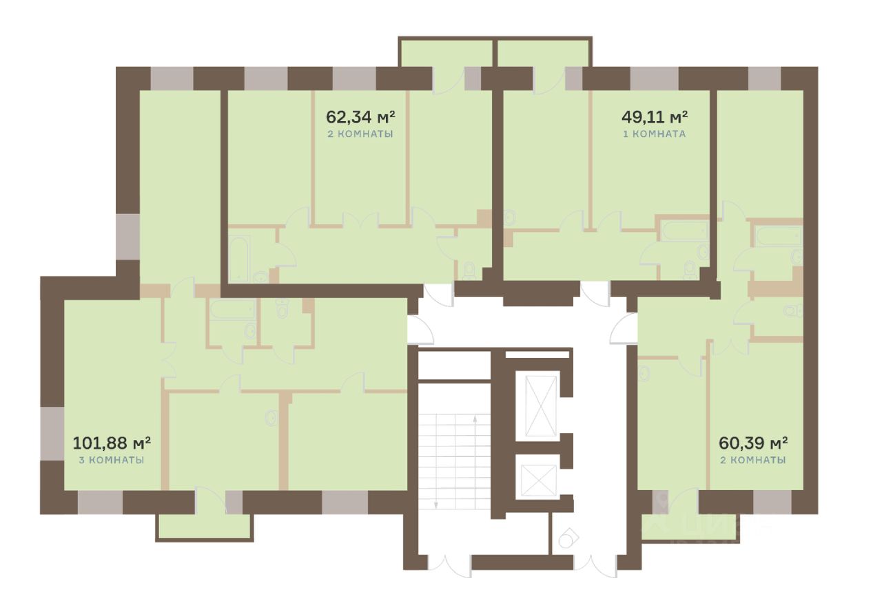
Южный берег, Дом 23, квартира 301.
Флагманский проект, первый большой район нашего Удобного города.
Закрытые тихие дворы и удобные оживленные улицы, пешеходный бульвар Экзюпери и просторные зеленые лужайки для отдыха. Сияющие звезды зимой и насыщенная событийная программа летом. Всё это создаёт неповторимую притягательную атмосферу Южного берега, которой и должен обладать город, в котором удобно всем.
Квартира сдается в отделке ''белый куб''. Выровнены и оштукатурены стены, бетонная стяжка на полу, натяжной потолок, полная электроподготовка и установлена базовая сантехника. Вы получаете ключи от квартиры, подготовленной к воплощению ваших фантазий.







