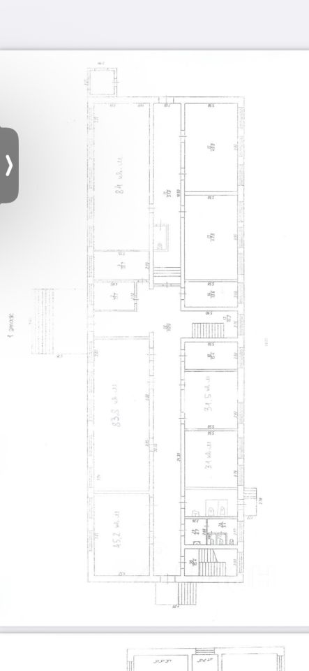
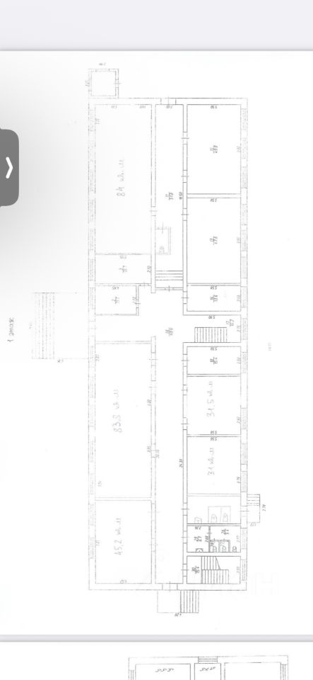
Продается офисное здание, парковка наземная. Все помещения сданы в аренду, ранее в здании располагался учебный центр Сбербанка. Во дворе имеются гаражные боксы. Земельный участок площадью 1280 кв. метров находится в собственности. Выделенная мощность 125 кВт.