Если цена в объявлении изменится, мы сразу сообщим вам об этом на электронную почту.
Нажимая «Подписаться», вы соглашаетесь с правилами.
продам универсальное помещение, Петра Подзолкова, 5б10 900 000 ₽
17 окт
Дата публикации объявления
Обн. 26 мая
Дата обновления объявления
363
Количество просмотров (+ просмотры за сегодня)
169 255 ₽/м²
Параметры
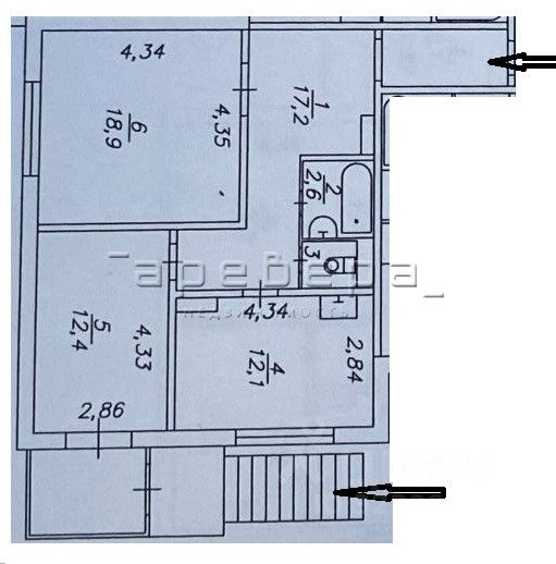
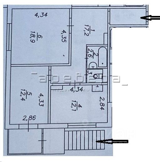
Общая площадь64,4 м2
Этаж1
Отдельный входесть
По документам - НЕЖИЛОЕ! Продается нежилое помещение, общей площадью 65.кв.м. Адрес: ул.Петра Подзолкова 5Б
Описание: В продаже коммерческое помещение 65 кв.м. расположенное на первой линии в ЖК Светлый, граничит с ЖК Преображенский. Дом панельный, 16 этажей, построен в 2016 году застройщиком КБС. Нежилое помещение располагается на первом этаже и имеет два входа. Отдельный вход обеспечит удобство для вашего бизнеса. Без перепланировок, три комнаты-см.план, ремонт соответствует фото. В настоящее время в помещении располагается действующая долгосрочная аренда (детский сад).
По документам - НЕЖИЛОЕ! Продается нежилое помещение, общей площадью 65.кв.м. Адрес: ул.Петра Подзолкова 5Б
Описание: В продаже коммерческое помещение 65 кв.м. расположенное на первой линии в ЖК Светлый, граничит с ЖК Преображенский. Дом панельный, 16 этажей, построен в 2016 году застройщиком КБС. Нежилое помещение располагается на первом этаже и имеет два входа. Отдельный вход обеспечит удобство для вашего бизнеса. Без перепланировок, три комнаты-см.план, ремонт соответствует фото. В настоящее время в помещении располагается действующая долгосрочная аренда (детский сад).