Предлагаю на продажу отдельностоящее здание расположенное в историческом центре города Красноярска.
В здании действующий бизнес отель-ресторан с неповторимым стилем купечества конца девятнадцатого века.
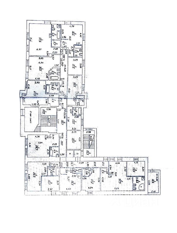
Объект состоит из трех уровней (1,2,3 этажи и небольшой цоколь 71кв.м). Общая площадь здания 1710 кв.м. На первом этаже расположен ресторан, зона ресепшн, зона отдыха, банкетный зал и кухня. На верхних этажах комфортабельные номера. Есть проект для организации конференц-зала.
Объект подойдет как для ведения отельного бизнеса, так и для организации офиса крупной компании.
Не смотря на то, что здание расположено в самом центре деловой жизни, оно обособлено и вас не побеспокоит шум и городская суета.
Предлагаю на продажу отдельностоящее здание расположенное в историческом центре города Красноярска.
В здании действующий бизнес отель-ресторан с неповторимым стилем купечества конца девятнадцатого века.
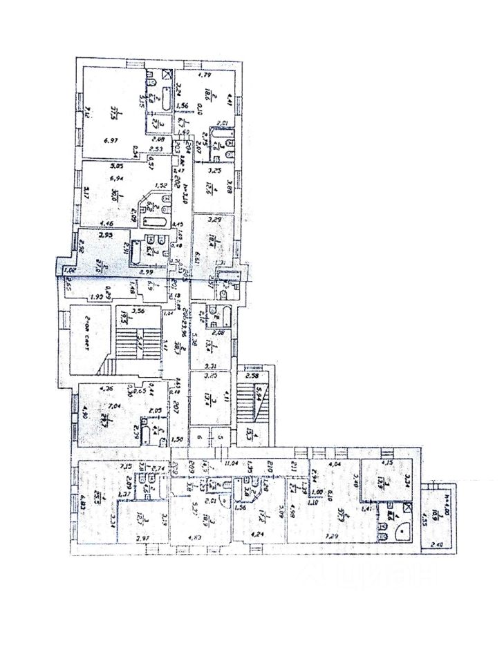
Объект состоит из трех уровней (1,2,3 этажи и небольшой цоколь 71кв.м). Общая площадь здания 1710 кв.м. На первом этаже расположен ресторан, зона ресепшн, зона отдыха, банкетный зал и кухня. На верхних этажах комфортабельные номера. Есть проект для организации конференц-зала.
Объект подойдет как для ведения отельного бизнеса, так и для организации офиса крупной компании.
Не смотря на то, что здание расположено в самом центре деловой жизни, оно обособлено и вас не побеспокоит шум и городская суета.
Земельный участок под зданием в собственности, общая площадь 2086 кв.м. На территории просторная парковка с видеонаблюдением, выложенная брусчаткой.
Звоните, с удовольствием отвечу на все ваши вопросы.