Отдельностоящее здание
Березина, 158/2 Показать на карте
Березина, 158/2 Показать на карте
Центральный район, Покровка
Красноярск
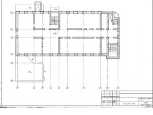
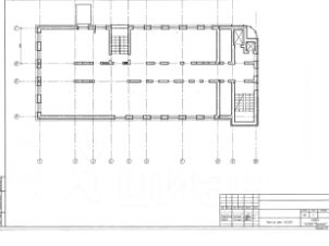
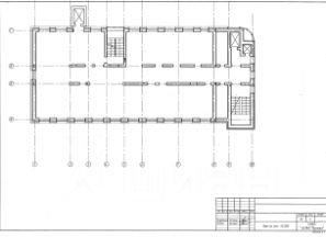
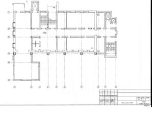
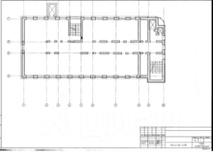
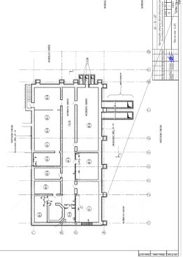
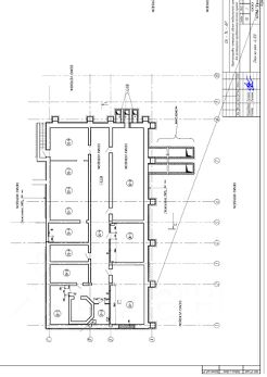
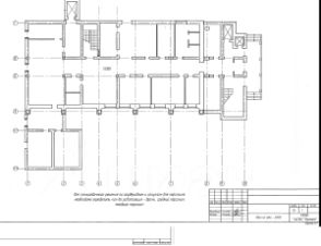
Инвестпроект: отдельно стоящее здание 1662 м² в микрорайоне Покровский с двумя уровнями доступа. Продается отдельно стоящее коммерческое здание по адресу: Красноярск, ул. Березина, 158/2. Общая площадь — 1 661,99 м².Ключевое преимущество объекта — два отдельных входа и два отдельных заезда на разных ярусах. За счет рельефа здание фактически работает как объект с двумя независимыми первыми этажами. Это дает редкую для коммерческой недвижимости гибкость: нижний уровень логично использовать под розничную торговлю, верхний входной уровень и этажи выше — под свободное назначение: медицинский центр, офис компании, услуги, образовательный проект или другого сильного пользователя.Такая конфигурация усиливает коммерческую модель объекта: нижний торговый уровень обычно сдается дороже, верхний уровень можно использовать независимо, потоки не смешиваются, а площади при необходимости делятся на самостоятельные блоки под разных арендаторов или под одного крупного пользователя.По запросу направлю планы этажей, базовую финансовую модель и укрупненный расчет достройки.Объект интересен не только площадью, но и возможностью собрать сильную арендную или пользовательскую модель: розничная торговля на нижнем уровне и свободное назначение на верхних уровнях.Локация дополнительно усиливается развитием территории микрорайона Покровский. В перспективе — новая дорога, развитие жилой среды, спортивной, образовательной и дошкольной инфраструктуры. Это повышает транспортную доступность и долгосрочный потенциал объекта.Объект подойдет под покупку целиком, инвестиционный проект, совместную реализацию или партнерский формат с инвестором.Оптимальный формат обсуждения — встреча на объекте. На месте можно сразу оценить два уровня доступа, рельеф, деление по этажам и наиболее сильный сценарий реализации.Если рассматриваете покупку, партнерство или совместную реализацию — пишите или звоните, договоримся о встрече у объекта.
1661 м2
- Показать контакты
- Добавить в избранное
1661 м2
35 000 000
21 059 /м2
