Если цена в объявлении изменится, мы сразу сообщим вам об этом на электронную почту.
Нажимая «Подписаться», вы соглашаетесь с правилами.
продам универсальное помещение, им газеты Красноярский Рабочий проспект, 9121 000 000 ₽
12 сен
Дата публикации объявления
Обн. 15 мая
Дата обновления объявления
402
Количество просмотров (+ просмотры за сегодня)
65 625 ₽/м²
Параметры
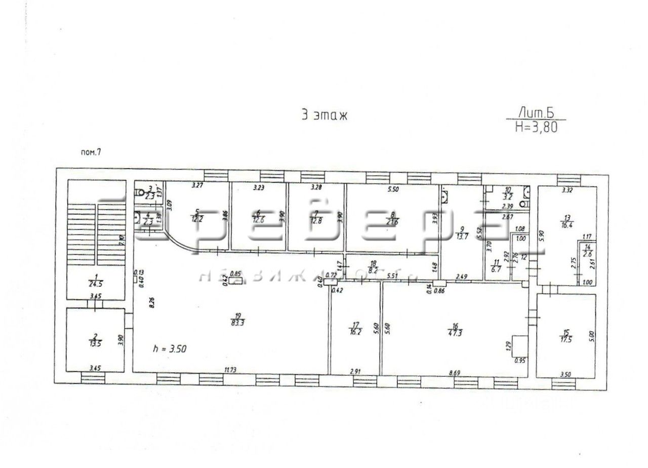
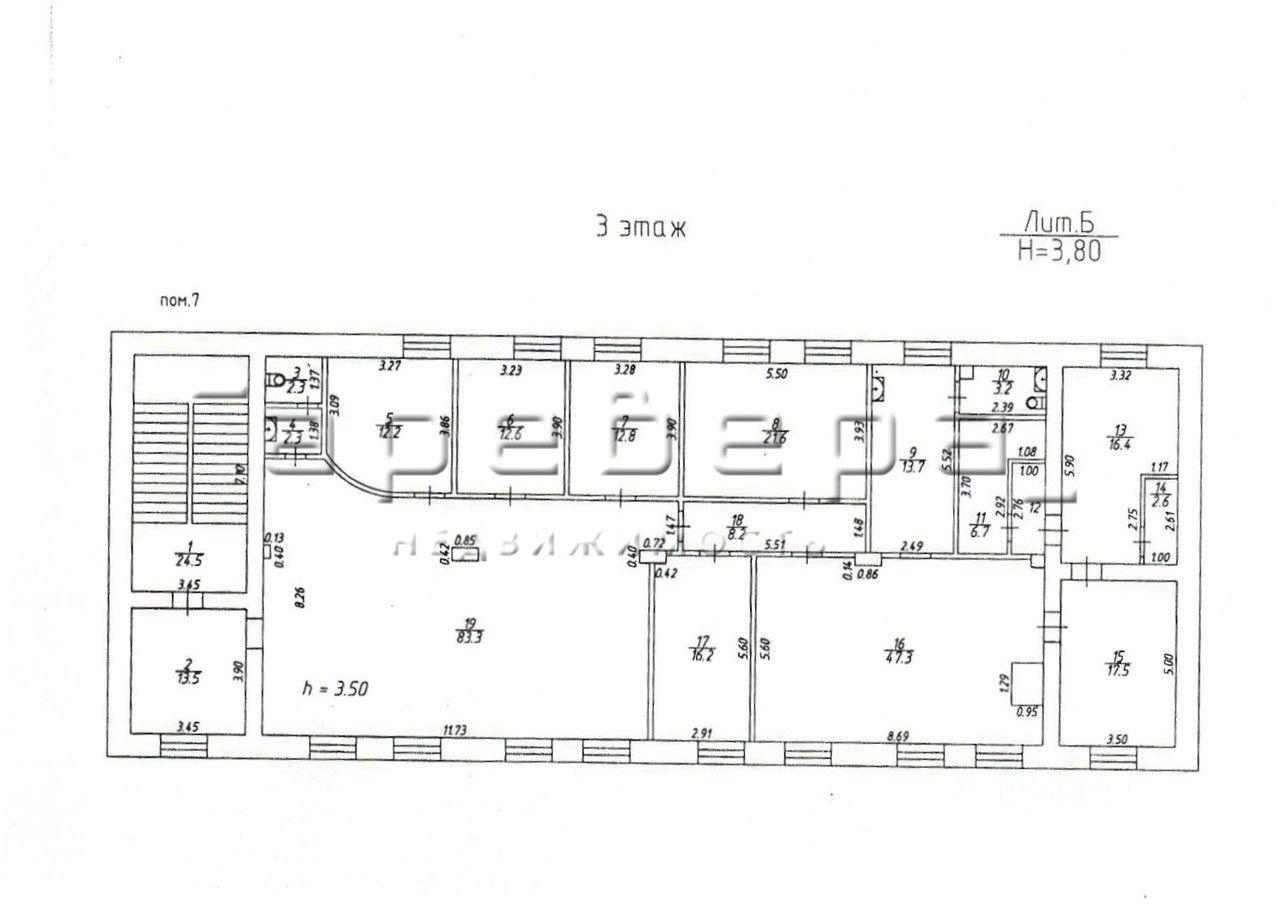
Общая площадь320 м2
Этаж3
Год постройки2000
Продаем нежилое помещение площадью 320кв.м . Рассмотрю варианты РАССРОЧКИ и ОБМЕНА. Можно перестроить в апартаменты или сделать отдельные кабинеты и сдавать в аренду.
Дом стоит на первой линии пр.Красноярский рабочий. Через дорогу расположен торговый центр Красноярье, за домом расположен Институт Цветных Металлов. В здании уже находятся якорные арендаторы — Пятерочка, Фикс Прайс, Ставки на Спорт, Мебельная компания.
Помещение с высокими потолками 3,80м. Здесь можно снести все перегородки, оставив только несущие колонны. Кабинеты имеют хорошие площади — 13, 16, 21, 47 метров. Планировку можно перестроить под свои потребности. Перекрытия железобетонные.
Технические условия — электричество 75кВт, напряжение 220Вт.
Продаем нежилое помещение площадью 320кв.м . Рассмотрю варианты РАССРОЧКИ и ОБМЕНА. Можно перестроить в апартаменты или сделать отдельные кабинеты и сдавать в аренду.
Дом стоит на первой линии пр.Красноярский рабочий. Через дорогу расположен торговый центр Красноярье, за домом расположен Институт Цветных Металлов. В здании уже находятся якорные арендаторы — Пятерочка, Фикс Прайс, Ставки на Спорт, Мебельная компания.
Помещение с высокими потолками 3,80м. Здесь можно снести все перегородки, оставив только несущие колонны. Кабинеты имеют хорошие площади — 13, 16, 21, 47 метров. Планировку можно перестроить под свои потребности. Перекрытия железобетонные.
Технические условия — электричество 75кВт, напряжение 220Вт.
Готовы предложить продажу всего здания, а также аренду всего 3 этажа одному арендатору.